Home Land Sea Air Hydro POI Equi
Minuteman Missile National Historic Site

The Minuteman ICBM constituted one of the most technologically significant strategic weapon systems developed during the cold war. The first Minuteman missile was placed on alert at Malmstrom Air Force Base, Montana, on 27 October 1962. Compared to Atlas and Titan I, the first generation of liquid-fueled ICBMs, the Minuteman was a simple, lightweight, reliable, solid-fueled missile, inexpensive to build and maintain, and quick to launch. Minuteman could deliver a nuclear warhead a continent away in about a half-hour. Thus, in its hardened and dispersed deployment, Minuteman gave the United States its first true, push-button nuclear warfare capability.

By 1973, a new version of the missile, Minuteman II, with its increased flight range, improved accuracy, and other technological improvements had replaced Minuteman I. The entire Minuteman II force was taken off alert on 28 September 1991.

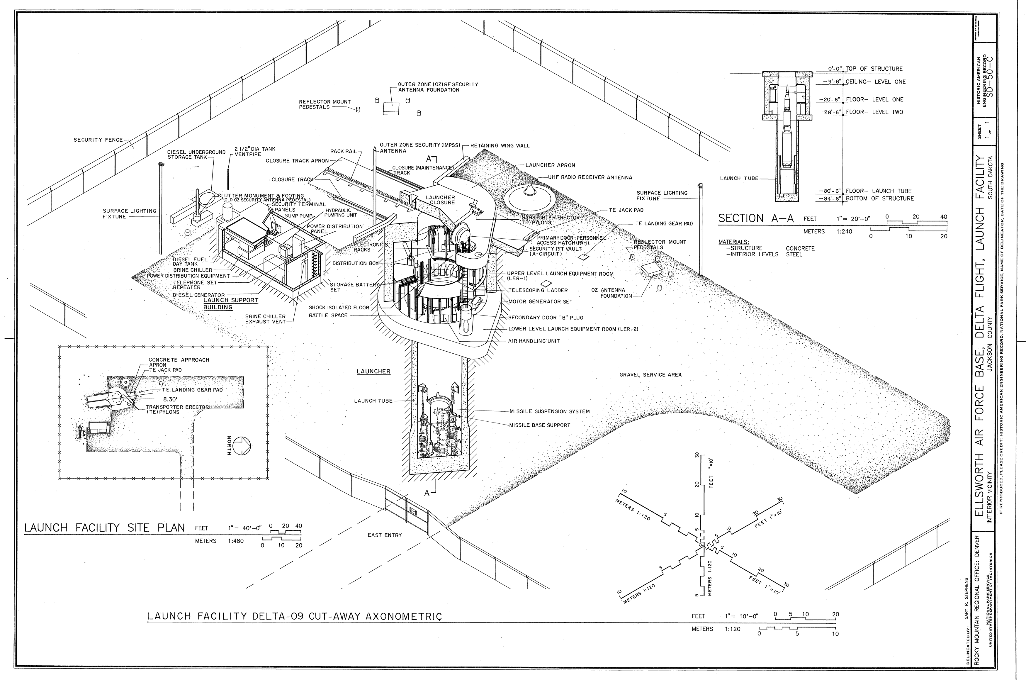
The images on this site depict some of the major features of the Delta-01 and Delta-09 facilities including several sections of the missile silo and launch support building that are not normally accessible.

The images on this site are spherical panoramas. Once a page has finished loading, you can click and drag on the image to control your viewing direction.

Click here to begin the tour, or you can click on any of the links below to go directly to that page of the tour.

The text on this site has been excerpted from the Minuteman Missile Historic Resource Study.

Please note: The underground spaces of Delta-09 shown on this site are not accessible to the public at this time. Because of vertical ladders, confined space and other safety issues these areas are not part of the National Park Service tours.